Let’s analyze in detail design of reactor Unit on the example of CTU-1 unit, one of the first implemented on the factory “Gasprom neftekhim Salavat”. Design of other reactor units is given in the section “Laboratory catalytic units for petrochemistry”.
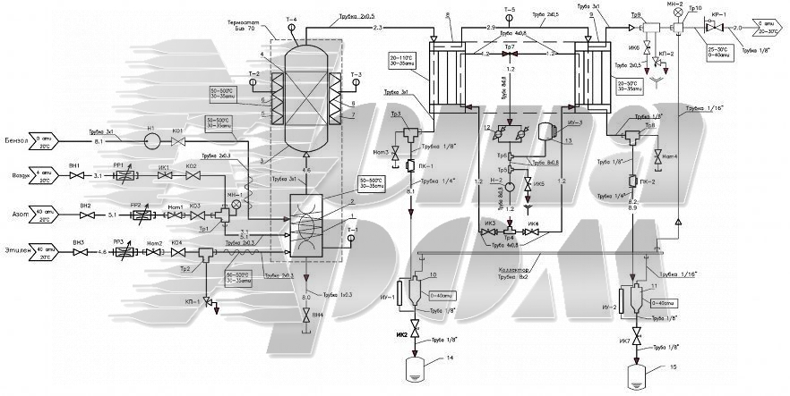
Reactor units represents complicated equipment, it consists of several systems and units which interact with each other:
- System of automatic formation of dosed gas flows
- System of automatic formation of dosed liquid flows
- Temperature-controlled mixer
- Temperature-controlled reactor
- Refrigerator
- System of automatic pressure maintenance
- System of automatic control and protection from excess pressure in the unit
- System of automatic formation of dosed gas flows (possible quantity of channels – up to four). System control and setting of working modes is done with the help of microprocessor, data is displayed on PC monitor. Pressure ranges and working flow rates and also list of gases you need to specify during preorder. Every gas line is equipped with manometer and manual ball valve. Needle valve is installed in parallel to one of electronic flow regulators, filling of reactor unit by working gas and its purge is done with the help of that valve.
- System of automatic formation of dosed liquid flows. High pressure pumps are used in this unit (possible quantity of channels – two). Pressure and flow rate ranges, and also type of the used liquid you should specify during preorder.
- Thermostated mixer.This element of reactor unit is responsible for evaporation of incoming liquids, formation of steam-gas mixture and warming-up of gases. Mixer control is done by microprocessor, working modes and their formation are displayed on PC screen. PTFE 12×18Н10Т. is used as manufacture material of mixer. Temperatures from50 to600 °Сand working pressure up to 10MPa are maintained in the mixer.
- Thermostated reactor. Heating of unit’s reactor is done in temperature ranges from 50 to600 °Сwith two-sectional heater of sliding type. Every section is equipped with individual temperature sensor and heater. Control of thermostat work is done by microprocessor. And working modes and their formation are displayed on PC screen. Reactor is equipped with
filter-mixer mixer of input and output types, which are produced from silica sand (filter-mixers mixers are placed in separate corpuses). Stainless still 12x18H10T is used as material of manufacture of thermostated reactor. Overall dimensions and volume of reactor should be specified during preorder. Now reactor is manufactured in two designs:- Without temperature sensor.
- With temperature sensor in reactor, location of which will be determined by operator. Operator can change the location of sensor at his discretion, and also during conduction of experiment (constant time value of temperature sensor is 1-2 sec).
Reactor corpus is done in the form of hexagon to provide maximal comfort during sealing. Type of seal is chosen depending on customer’s order:
- Graflex (pressure up to 10 MPa, temperature modes – up to 800°С).
- Paronite (pressure up to MPa, temperature modes – up to 300°С).
- Metal on metal (stainless still, brass, copper, aluminum).
- Refrigerator. . This device is integral part of reactor unit and represents a volume in the form of spiral , which is located in the casing with cooling liquid (antifreeze, water, etc.). Refrigerator can work at pressure up to 10 MPa. Closed circuit cooling system contains cooling radiator with a fan and a pump. To achieve negative temperatures in the fridge it is possible to install cooling unit with heat exchanger. Refrigerators can be one-stage and two-stage. At that second stage is responsible for increase of productivity of the unit (increase of productivity is achieved by means of series connection) and for separation of light boiling fraction.
Between refrigerator stages there is connection tube with built-in temperature sensor. This helps to set necessary refrigerator temperature and flow rate of coolant that goes through every cooling casing is controlled by needle valve. Refrigerator output is equipped with needle and plug valves. Plug valve performs the function of connecting link between refrigerator output and container where all reaction products go to. Container is equipped with specific valve for liquid drain and with level sensor (data about the sensor is transferred to PC). Needle valve is needed for sampling at the output and for sample analysis with working pressure 10MPa. - System of automatic pressure maintaining.. System maintains the pressure in the range of 0 to 5 MPa. Constant power is maintained automatically by means of partial discharge of gas fraction (as a a rule pairs of mixture components or inert gas) into the atmosphere or gas meter (not included in the package).
- System of automatic control and protection from overpressure in the plant. In the system configuration there are electronic pressure transducers, that are located before and after reactor, and also protective safety valves of mechanical type. Valves are set on 0,5 MPa higher than working pressure in the system. If safety valves are activated steam-gas mixtures are discharged into drainage system, outlet port of which is connected either with recycling tank or with atmosphere. All data from electronic transducers is transferred to PC and is identified on the screen. If preset thresholds are exceeded than liquids and gases automatically stop coming to the unit, formation of flows is done by flow regulators and by the pumps.
| Technical characteristics | Seal of reactor unit by customer ‘s order | ||
| Graflex | Paronite | Metal on metal | |
|---|---|---|---|
| Range of working temperatures | Up to 800°С | Up to 300°С | Aluminum |
| Copper | |||
| Pressure range, MPa | до 10 | до 10 | Brass |
| Stainless still | |||
Additional possibilities of reactor unit
Gas-liquid separator of low pressure with automatic maintenance of the set temperature mode in thermostatic casing can be installed into the system if necessary. Diversion of gas component is done under atmospheric pressure through gas line, while condensed liquid goes to bulb receiver. For examination of steam-gas mixture, discharged liquids and gases, system must be equipped with gas chromatograph.
Peculiarities of reactor unit
Reactor unit works from electric network with voltage 220 V, frequency 50 Hz. Maximum power consumption – 1,5 kW. Generation and storage of reports with data chosen by operator is done by computer program. Thus necessary information about actual temperatures, pressures and flow rates during experiments can be stored in the unit memory. Detailed control of the process is also done by the program that records and saves to archive all deviations from the maintained values. Value of parameters and possible deviations are set by operator. Design of reactor unit does not include explosion-proof characteristic. Product warranty – 12 months.
How to buy reactor unit?
Applications for purchase are received by telephone number
